T- elementas su priešgaisriniu įdėklu PLM TB 1220 FS - OBO BETTERMANN (pavadinimas tikslinamas)
Produkto informacija
- Serija PYROLINE® Rapid
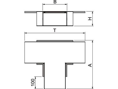
- Išorinis aukštis 120 mm
- Išorinis plotis 200 mm
- Liepsnai atsparių šonų skaičius 4
- Apdangalas Plienas
- Paviršiaus apsauga Cinkuotas
- Galimos pertvaros Taip
- Su apačios perforavimu Taip
Dokumentai
Visi vaizdai













