Plokščias kampas su priešgaisriniu įdėklu PLM FA 0810 FS - OBO BETTERMANN (pavadinimas tikslinamas)
Produkto informacija
- Serija PYROLINE® Rapid
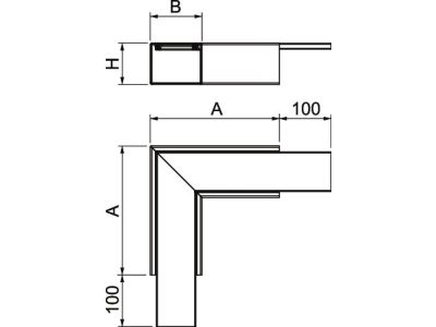
- Kampas 90 °
- Išorinis plotis 250 mm
- Vidinis aukštis 80 mm
- Vidinis plotis 100 mm
- Liepsnai atsparių šonų skaičius 4
- Apdangalas Plienas
- Paviršiaus apsauga Cinkuotas
- Su apačios perforavimu Taip
Dokumentai
Visi vaizdai













