Kabelių kopečios - KOPOS KOLIN (pavadinimas tikslinamas)
Produkto informacija
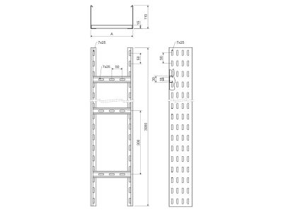
- Šoninės sijos tipas Profilis (atviras)
- Skersinio tipas Perforuotas profilis
- skersinio tvirtinimo būdas Pilnai prikniedytas
- Aukštis 110 mm
- Plotis 400 mm
- Ilgis 3000 mm
- Medžiaga Plienas
- Medžiagos rūšis Kita
- Paviršiaus apsauga Karštai cinkuotas
- Spalva Nėra
Dokumentai
Visi vaizdai

























