kabelio lovelis su integruota mova - KOPOS KOLIN (pavadinimas tikslinamas)
Produkto informacija
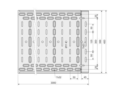
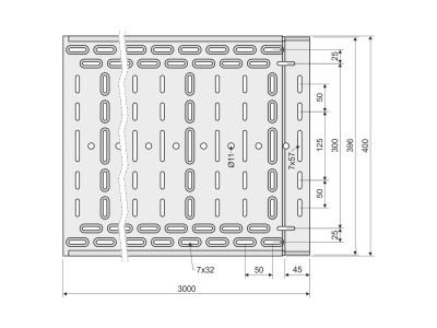
- Aukštis 60 mm
- Plotis 400 mm
- Medžiagos storis 1 mm
- Ilgis 3000 mm
- Universalaus jungimo 24000 mm²
- Modelis Integruota jungtis
- Medžiaga Plienas
- Medžiagos rūšis Kita
- Paviršiaus apsauga Karštai cinkuotas
- Spalva Nėra
Dokumentai
Visi vaizdai

























